Transporteur de poutre de pont préfabriqué hydraulique de 180 tonnes
a Transporteur de poutres de pont préfabriquées hydrauliques de 150 tonnes, également connu sous le nom deTransporteur modulaire automoteur-(SPMT)ou unTransporteur/portique de poutre de pont.
Cette machine est un équipement lourd hautement spécialisé-conçu pour l'une des tâches les plus critiques de la construction de ponts : déplacer le béton préfabriqué massif ou les-poutres précontraintes du chantier de coulée jusqu'à leur position finale sur les piliers du pont.

Principales fonctionnalités
I. Principales caractéristiques de manutention et de levage des charges
Système de levage hydraulique à grande capacité :
Capacité nominale de 180 tonnes :Spécialement conçu pour supporter le poids extrême des grandes poutres préfabriquées, souvent avec un facteur de sécurité intégré-(par exemple, une capacité de surcharge de 25 %).
Plusieurs points de levage hydraulique :Comporte généralement 4, 6 ou plus de vérins hydrauliques synchronisés (entretoises) pour répartir la charge uniformément sur toute la longueur de la poutre, évitant ainsi les moments de flexion excessifs.
Capacité de-levage/abaissement automatique :Le système hydraulique permet à l'opérateur de soulever la poutre du lit de coulée et de la descendre sur les remorques du transporteur sans avoir besoin d'une grue externe dans de nombreux cas.
Remorques modulaires à plusieurs-essieux (SPMT - transporteurs modulaires automoteurs-) :
Conception modulaire :Le transporteur se compose de plusieurs lignes d'essieux indépendantes qui peuvent être reliées pour former une unité de la longueur et de la largeur requises. Cela permet une personnalisation en fonction de la taille et du poids de la poutre.
Suspension hydraulique :Chaque essieu est équipé d'une suspension hydraulique qui peut être contrôlée individuellement pour :
Inclinaison et oscillation :Conformez-vous au sol irrégulier du site ou du chantier de coulée.
Augmenter/Diminuer :Aide à l'équilibrage de charge et au ramassage/dépose des faisceaux-.
Compenser pour la note :Gardez le faisceau à niveau même lorsque vous voyagez sur une pente.
Répartition égalisée de la charge :
Système synchrone hydraulique :Une unité d'alimentation centrale et un système de contrôle électronique garantissent que tous les points de levage et les suspensions de la remorque se déplacent en parfaite synchronisation, empêchant tout point d'être surchargé et garantissant la stabilité de la poutre.
II. Caractéristiques de mobilité et de maniabilité
Toutes les-roues directrices (AWS) :
Rotation à 360 degrés :Chaque module de roue peut être dirigé indépendamment, permettant une incroyable maniabilité.
Plusieurs modes de direction :Les modes standards incluent :
Direction des roues avant/arrière :Comme un camion.
Direction du crabe :Toutes les roues tournent dans la même direction, permettant au transporteur de se déplacer en diagonale.
Direction circulaire :Le transporteur tourne autour de son propre centre.
Mode Couteau- :Pour les virages serrés dans les espaces confinés.
Télécommande:Souvent commandé via une télécommande sans fil, permettant à l'opérateur de marcher à côté pour une meilleure vue lors d'un positionnement précis.
Capacité-automotrice :
Groupe motopropulseur diesel intégré :Chaque module possède ses propres moteurs hydrauliques entraînés par un groupe motopropulseur diesel, fournissant le couple nécessaire pour déplacer de lourdes charges à des vitesses lentes et contrôlées.
Contrôle de conduite indépendant :Permet une adaptation précise de la vitesse et une coordination entre tous les modules.
III. Fonctions de contrôle opérationnel et de sécurité
Système de contrôle informatisé avancé :
Console centralisée :L'opérateur utilise une seule unité de commande (souvent une télécommande) pour gérer la direction, la vitesse, le levage et la suspension.
Indicateur de moment de charge (LMI) :Surveille la charge sur chaque essieu et point de levage en-temps réel, fournissant des avertissements en cas de dépassement d'un paramètre.
Nivellement automatique :Le système peut ajuster automatiquement la suspension pour maintenir le niveau de la poutre pendant le transport.
Systèmes de sécurité critiques :
Systèmes hydrauliques et de contrôle redondants :Systèmes de secours pour les fonctions critiques telles que le freinage et le levage afin d'éviter une panne catastrophique.
Échec-Freins sécurisés :Plusieurs systèmes de freinage (freins de service, freins de stationnement, freins d'urgence) qui s'enclenchent automatiquement en cas de perte de puissance.
-Terrasse antidérapante :Le pont est souvent recouvert d'un-matériau antidérapant ou comporte des-points d'arrimage pour fixer la poutre.
Vitesse de déplacement lente :Conçu pour des déplacements lents et sûrs (généralement de 0 à 5 km/h en charge) afin de minimiser les forces dynamiques sur la poutre.
IV. Fonctionnalités de conception et de configuration
Deck robuste et à profil bas :
Le pont est conçu pour être aussi bas que possible par rapport au sol afin de maintenir un centre de gravité bas et de maximiser la stabilité, en particulier lors du transport de poutres hautes.
Construit en acier à haute résistance-pour résister à d'immenses charges et à la fatigue.
Configuration personnalisable :
La nature modulaire permet au transporteur d'être configuré pour transporter plusieurs faisceaux simultanément ou un seul faisceau exceptionnellement long (par exemple, plus de 40 mètres).

Pièces et composants
1. Cadre structurel
C’est la structure physique de base qui supporte la charge.
Pont principal/plateforme :Une plate-forme en acier robuste-qui constitue la surface sur laquelle repose la poutre préfabriquée. Il est conçu avec une grande rigidité pour éviter toute flexion sous une charge extrême.
Poutres/berceaux de support :Supports ou berceaux personnalisables et réglables montés sur le pont. Ceux-ci sont profilés ou rembourrés pour maintenir solidement la forme spécifique de la poutre du pont (par exemple, poutre en I-, poutre en U -, poutre-caisson) et répartir la charge uniformément.
Unités modulaires :Les SPMT sont souvent modulaires. Plusieurs modules à 4-essieux, 6-essieux ou 8-essieux peuvent être connectés côte à côte-et de bout en bout à l'aide :
Connecteurs à broches :Des broches en acier-à haute résistance qui verrouillent mécaniquement les modules ensemble, leur permettant d'agir comme une plate-forme unique et plus large.
2. Module d'alimentation et système de contrôle
Le « cerveau » et le « cœur » du transporteur.
Bloc d'alimentation (diesel ou électrique) :Un moteur diesel dédié ou une unité de puissance entraînée par un moteur électrique-qui génère une pression hydraulique et de l'énergie électrique pour l'ensemble du système. Pour une capacité de 150 tonnes, c'est une unité importante.
Système de contrôle électronique centralisé :L'opérateur utilise une télécommande (souvent une télécommande suspendue ou sans fil) pour commander le transporteur.
Ordinateurs de bord-(ECU) :Chaque module d'essieu dispose d'une unité de commande électronique qui reçoit les signaux du contrôleur principal et gère avec précision les fonctions hydrauliques des essieux et de la suspension qui lui sont attribués.
3. Système hydraulique
Ce système fournit les capacités de levage, de direction et de propulsion.
Vérins de suspension hydraulique :Situés sur chaque ligne d'essieu, ces vérins permettent le levage et l'abaissement indépendants du plateau. Ceci est essentiel pour :
Équilibrage de charge :Répartir le poids de la poutre uniformément sur tous les essieux.
Annulation de la pente du sol :Maintenir le niveau du faisceau même sur un terrain accidenté.
Fonction de levage :Relever légèrement la poutre pour dégager les supports temporaires.
Vérins de direction hydrauliques :Permettent à chaque jeu d’essieux d’être dirigé indépendamment. Cela permet une large gamme de mouvements :
Direction standard :Comme un camion.
Direction du crabe :Toutes les roues tournent dans la même direction pour un mouvement latéral.
Direction circulaire :Rotation de l'ensemble du transporteur autour d'un point central.
Direction diagonale :Pour des manœuvres complexes dans des espaces restreints.
Moteurs d'entraînement hydrauliques :Alimentez les roues. Tous les SPMT ne sont pas pilotés ; certains sont poussés/tirés par un tracteur séparé. Un transporteur automoteur de 150 tonnes-aurait de puissants moteurs hydrauliques sur plusieurs essieux.
4. Système d'essieu et de roue
L'interface entre la machine et le sol.
Lignes d'essieux :Chaque ligne d'essieu est constituée d'une poutre en acier solide ou fabriquée avec des roues aux deux extrémités. Un transporteur de 150 tonnes serait généralement configuré à partir de plusieurs modules, chacun avec 2 à 4 lignes d'essieux.
Axes pendulaires :Les essieux sont souvent montés sur des bras pendulaires, ce qui leur permet de pivoter et de maintenir un contact complet avec le sol même sur des surfaces inégales, garantissant ainsi une répartition sûre de la charge.
Roues et pneus :Pneus robustes-solides ou pneumatiques conçus pour des charges extrêmes. Le nombre de pneus est directement fonction de la pression au sol.
5. Composants de sécurité et auxiliaires
Indispensable pour un fonctionnement sécurisé et fiable.
Stabilisateurs/jambes stabilisatrices :Pieds hydrauliques qui peuvent être étendus jusqu'au sol pour offrir une stabilité supplémentaire lorsque le transporteur est à l'arrêt ou pendant le processus de chargement/déchargement.
Système de détection de charge :Surveille la pression dans chaque vérin de suspension hydraulique, fournissant-des données en temps réel sur la répartition du poids et la charge totale à l'opérateur et au système de contrôle.
Verrous de sécurité/arrêts mécaniques :Verrous physiques qui peuvent être engagés pour sécuriser les vérins de suspension hydrauliques, fournissant une sécurité mécanique en cas de panne hydraulique.
Capteurs anti-collision :Capteurs de proximité ou scanners laser capables de détecter les obstacles et d'arrêter automatiquement le véhicule pour éviter les accidents.
Points d'arrimage- :Points robustes sur le pont pour sécuriser la poutre avec des chaînes ou des sangles à haute résistance-pendant le transport (bien que le poids de la poutre soit principalement retenu par la friction et les berceaux).
Comment les composants fonctionnent ensemble pour transporter une poutre :
Positionnement :Le transporteur est entraîné ou positionné sous la poutre, qui repose sur des piliers temporaires ou un lit de coulée.
Levage:L'opérateur utilise la télécommande pour soulever les vérins de suspension hydrauliques, soulevant doucement la poutre de ses supports. Le système de détection de charge garantit que le poids est uniforme.
Sécurisation :La poutre est fixée dans les berceaux réglables. Les stabilisateurs peuvent être étendus pour plus de stabilité.
Transport:L'opérateur sélectionne le mode de direction approprié (par exemple, direction en crabe pour se déplacer latéralement hors du chantier de coulée) et conduit le transporteur le long d'un itinéraire pré-planifié à des vitesses très faibles (généralement 1 à 3 km/h).
Placement:Arrivé aux culées ou aux piles du pont, le transporteur manœuvre avec une extrême précision. La suspension hydraulique permet des micro-ajustements en hauteur et en planéité pour placer la poutre exactement dans sa position finale sur les patins d'appui.
Descente et rétraction :La poutre est abaissée sur ses supports permanents, le transporteur est abaissé, puis il sort du dessous de la poutre pour ramasser la suivante.
En résumé, un transporteur de poutres préfabriquées de 150-tonnes est une symphonie d'ingénierie structurelle robuste, de contrôle hydraulique précis et d'électronique intelligente, le tout travaillant à l'unisson pour gérer l'un des composants les plus critiques et les plus lourds de la construction d'un pont.

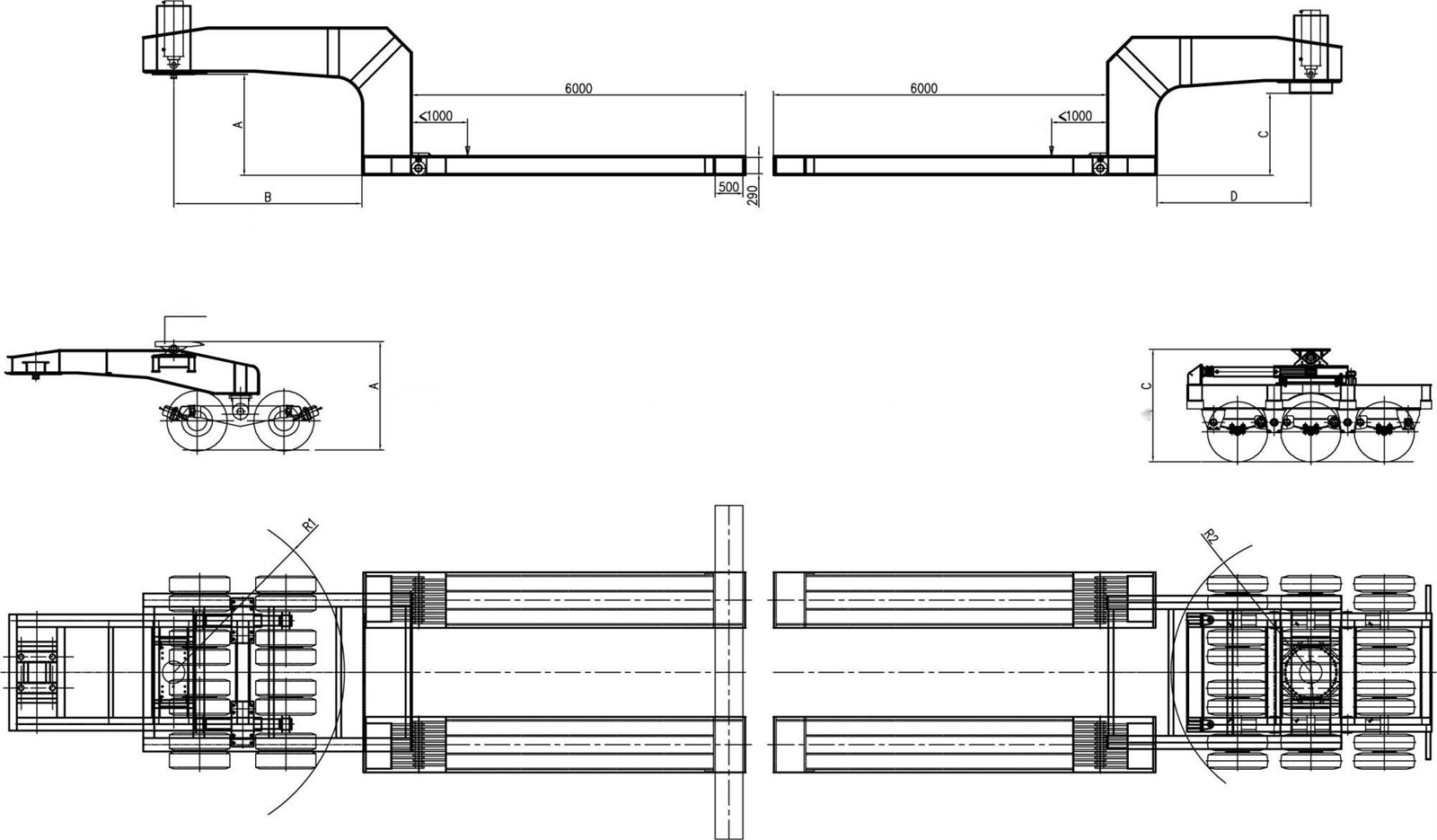
Paramètre du produit

Esquisser

Avantages
Avantages par rapport aux méthodes traditionnelles (comme les grandes grues)
Précision:Offre un contrôle inégalé pour un placement précis.
Efficacité:Combine le transport et le placement dans une seule machine, réduisant ainsi le besoin de plusieurs équipements.
Maniabilité:Des options de direction supérieures lui permettent de travailler dans des espaces restreints où une grande grue ne rentrerait pas.
Sécurité:Les commandes informatiques et les systèmes de sécurité intégrés réduisent considérablement le risque d'erreur humaine pendant le processus critique de levage et de placement.
Pression au sol :Répartit la lourde charge sur plusieurs roues, réduisant ainsi la pression au sol par rapport à une grue sur stabilisateurs, ce qui est crucial sur un sol meuble.

Application
Applications principales et cas d'utilisation
1. Construction d'autoroutes et de viaducs
C'est l'application la plus courante. Le transporteur est utilisé pour ériger des poutres préfabriquées pour :
Nouveaux survols et échangeurs autoroutiers :Placer plusieurs poutres parallèles pour former le tablier d'un passage supérieur au-dessus d'une autre route ou autoroute.
Projets d'élargissement de pont :Il permet de placer soigneusement de nouvelles poutres à côté d'une structure de pont existante tout en minimisant les perturbations de la circulation.
Remplacement des vieux ponts :Installation rapide de nouvelles poutres après la démolition d’une ancienne structure, réduisant considérablement les temps de fermeture des routes.
2. Construction de ponts ferroviaires
Semblable aux applications sur autoroute, mais avec un accent encore plus grand sur la précision et la minimisation du temps de possession de la piste.
Construction de nouveaux viaducs ferroviairesou des ponts sur les rivières et les vallées.
Remplacer rapidement les ponts ferroviaires vieillissantspendant de courtes fermetures de voies programmées.
3. Lancement depuis le niveau du sol ou depuis les zones de transit
Cette machine excelle dans les situations où les grandes grues sont peu pratiques ou trop coûteuses.
Lancement par-dessus des obstacles :Il peut récupérer des poutres depuis une zone de préparation au sol et les transporter le long des piliers du pont terminés, en les lançant sur des routes, des voies ferrées ou des voies navigables sans avoir recours à des grues perturbatrices et coûteuses par le bas.
Sites à accès limité :Dans les environnements urbains encombrés ou les zones écologiquement sensibles (comme les zones humides), où l'installation d'une grande grue est impossible, le transporteur peut travailler à partir d'une seule zone de transit consolidée.
4. Construction de ponts segmentaires
Bien qu'il soit souvent utilisé pour les poutres-de pleine longueur, sa capacité de 180 tonnes le rend adapté à la manipulation de grands segments préfabriqués.
Il peut transporter et positionner avec précision des segments individuels pourconstruction en porte-à-faux équilibrée segmentaire préfabriquée, où les segments sont placés symétriquement à partir d'une jetée.
5. Construction accélérée de ponts (ABC)
Cette machine est une pierre angulaire de la philosophie ABC, qui vise à réduire le temps de construction sur-chantier.
En permettant une mise en place rapide et systématique des éléments préfabriqués, il permetla superstructure entière d'un pont doit être érigée en quelques jours ou semaines au lieu de plusieurs mois.
Cela réduit considérablement les retards de circulation, améliore la sécurité des travailleurs en minimisant le temps passé à proximité de la circulation réelle et réduit le risque global du projet.

Procédure de production
Procédure de production pour un transporteur de poutres de pont préfabriquées hydrauliques de 150 tonnes
Contrôle des documents :
Produit:Transporteur modulaire automoteur (SPMT)/Transporteur à poutres
Modèle:BT-150
Capacité de levage :150 tonnes métriques
Version: 1.0
1.0 Introduction et portée
Cette procédure définit le processus de fabrication-par-étape pour un transporteur de poutres hydrauliques robuste-à plusieurs-essieux conçu pour la manipulation et le transport précis de poutres de pont en béton préfabriqué, de poutres et d'autres charges lourdes dans les chantiers de préfabrication et les chantiers de construction. Le transporteur se caractérise par sa conception modulaire, sa direction hydraulique et ses capacités automotrices.
2.0 Phases de production
La production est divisée en six grandes phases :
Phase 1 : Ingénierie et conception
Phase 2 : Approvisionnement et inspection du matériel
Phase 3 : Fabrication et usinage
Phase 4 : Fabrication de sous-assemblages
Phase 5 : Assemblage final et intégration
Phase 6 : Tests, inspection et livraison
Phase 1 : Ingénierie et conception
Conception conceptuelle et exigences du client :
Finaliser les spécifications techniques en fonction des besoins du client : capacité de charge (150t), nombre de lignes d'essieux, taille du pont, garde au sol requise, rayon de braquage minimum et vitesse souhaitée.
Définir les paramètres opérationnels (par exemple, utilisation intérieure/extérieure, exigence de télécommande).
Ingénierie détaillée :
Analyse structurelle (FEA) :Effectuez une analyse par éléments finis sur le châssis principal et le pont pour garantir l'intégrité structurelle à pleine charge, y compris les facteurs dynamiques. Identifiez et renforcez les zones de concentration de stress.
Conception du système hydraulique :Concevez le circuit des moteurs d'entraînement hydrauliques, des vérins de direction et du système de suspension (le cas échéant). Sélectionnez les composants (pompes, vannes, moteurs, cylindres, flexibles) adaptés aux pressions et débits requis.
Conception du système électrique :Concevez la distribution d'énergie, le système de contrôle et l'interface opérateur (qu'elles soient basées sur la cabine-ou à distance-contrôlées). Inclure des verrouillages de sécurité et des circuits d'arrêt d'urgence.
Conception mécanique :Créez des dessins détaillés pour tous les composants : cadres de châssis, ensembles d'essieux, tringleries de suspension et broches de connexion.
Nomenclature (BOM) :Générez une liste complète de toutes les matières premières, composants achetés et pièces standard.
Phase 2 : Approvisionnement et inspection du matériel
Approvisionnement:
Commandez des plaques d'acier à haute résistance-(par exemple, ASTM A572 Grade 50) et des sections structurelles (poutres, canaux) pour le cadre principal.
Procurez-vous tous les composants hydrauliques (pompes, moteurs, vannes, cylindres), les composants électriques (contrôleurs, capteurs, câbles) et les pièces mécaniques (essieux, roues, roulements, broches).
Inspection entrante (IQC) :
Matériau en acier :Vérifiez les certificats de matériaux (certificats d'essais en usine) et vérifiez les dimensions et les défauts de surface.
Composants achetés :Inspectez les composants hydrauliques et électriques pour vérifier les numéros de modèle corrects et les dommages. Les composants critiques tels que les pompes et les moteurs peuvent nécessiter des tests préliminaires sur banc.
Phase 3 : Fabrication et usinage
Préparation de l'acier :
Marquage et découpe :Utilisez des machines de découpe plasma ou oxy-CNC pour couper des plaques et des sections d'acier selon les dessins. Cela garantit une grande précision pour le soudage ultérieur.
Usinage:
Usinez les surfaces et les trous critiques sur les fraiseuses et les tours CNC. Cela comprend :
Usinage de supports de montage pour moteurs et essieux hydrauliques.
Trous de broches ennuyeux pour les connexions d’essieux afin d’assurer un alignement parfait.
Créer une surface de terrasse plate et nivelée.
Phase 4 : Fabrication de sous-assemblages
Assemblage du châssis/du module :
Jigging :Assemblez les composants du cadre principal dans un gabarit d'assemblage solide et plat pour éviter toute distorsion et garantir la précision dimensionnelle.
Soudage:Effectuez le soudage à l’arc submergé (SAW) ou le soudage à l’arc sous gaz métallique (GMAW) pour les coutures principales par des soudeurs certifiés. Suivez une spécification de procédure de soudage (WPS) pré-qualifiée.
Inspection des soudures :Effectuez des tests non-destructifs (CND) tels que l'inspection des particules magnétiques (MPI) ou les tests par ultrasons (UT) sur les soudures critiques.
Assemblage du module d'essieu :
Assemblez l'essieu, le moyeu, la roue et le moteur d'entraînement hydraulique en une seule unité.
Montez le vérin de direction hydraulique sur l’ensemble d’essieu.
Ensemble d'unité de puissance hydraulique (HPU) :
Montez le moteur diesel (ou le moteur électrique), la pompe hydraulique, le réservoir, les filtres et le système de refroidissement sur une base antidérapante.
Raccordez la plomberie hydraulique du circuit principal.
Phase 5 : Assemblage final et intégration
Assemblage mécanique :
Positionnez le châssis principal sur les supports de montage.
Montez les modules d'essieux pré-assemblés sur le châssis à l'aide de broches de connexion et de verrous à haute résistance.
Installez les plaques de pont et toute -surface antidérapante.
Intégration du système hydraulique :
Installez le HPU sur le châssis.
Faites passer et connectez les flexibles hydrauliques entre le HPU, les vannes de commande, les vérins de direction et les moteurs d'entraînement. Assurez-vous d’un acheminement et d’un serrage appropriés pour éviter l’usure.
Remplissez le système avec le liquide hydraulique approprié.
Intégration du système électrique :
Installez la cabine de l'opérateur ou le système de télécommande.
Faites fonctionner les faisceaux de câbles et connectez les capteurs, les contrôleurs, les joysticks et les panneaux d'affichage.
Mettre en œuvre le système de sécurité (par exemple, arrêts d'urgence, avertissements de surcharge, capteurs d'angle de braquage).
Peinture et finition :
Préparation des surfaces :Sabler toute la structure selon la norme Sa 2,5 pour éliminer la rouille et la calamine.
Amorçage:Appliquez un apprêt époxy-de haute qualité.
Revêtement supérieur :Appliquer une couche de finition polyuréthane de la couleur spécifiée. Appliquez plusieurs couches sur les zones critiques pour la protection contre la corrosion.
Phase 6 : Tests, inspection et livraison
Vérifications pré-opérationnelles :
Vérifiez toutes les connexions électriques et les niveaux de liquide.
Purger le système hydraulique pour éliminer l'air.
Pas de-tests fonctionnels de charge :
Démarrez le moteur et vérifiez s'il y a des fuites.
Testez toutes les fonctions sans charge : mouvement avant/arrière, modes de direction individuels et coordonnés (crabe, cercle, diagonale) et fonctions de levage/suspension.
Test de charge statique (110 % - 165 tonnes) :
Le transporteur est positionné sur des capteurs de pesée certifiés ou sur un banc d'essai.
Une charge d'essai de 165 tonnes (150 tonnes x 1,1) est soigneusement appliquée à l'aide de poids calibrés ou de vérins hydrauliques.
La structure est inspectée pour détecter toute déflexion ou déformation sous pleine charge pendant une période prolongée (par exemple 10 minutes).
La pression du système hydraulique est surveillée pour garantir qu'elle peut supporter la charge sans activation de la soupape de décharge.
Test de charge dynamique :
Avec la charge d'essai de 150 tonnes, le transporteur roule à basse vitesse pour tester :
Performances de freinage.
Fonctionnalité de direction sous charge.
Alimentation et contrôle du système d’entraînement.
Stabilité et équilibre.
Inspection finale et documentation :
Un audit qualité final est effectué par rapport aux spécifications.
Préparer et remettre les documents suivants au client :
Rapport de données du fabricant :Certifier le respect des normes de conception.
Certificat de test de charge.
Manuels d'utilisation et d'entretien.
Livre de pièces et schémas hydrauliques/électriques.
Certificats pour les composants majeurs (moteur, pompes).
Livraison et formation des clients :
L'unité est préparée pour l'expédition (mise en caisse ou conduite sur une remorque surbaissée).
La mise en service sur site et la formation des opérateurs sont dispensées au personnel du client.

Vue de l'atelier
L'entreprise a installé une plateforme intelligente de gestion des équipements, et a installé 310 ensembles (ensembles) de robots de manutention et de soudage. Une fois le plan terminé, il y aura plus de 500 ensembles (ensembles) et le taux de mise en réseau des équipements atteindra 95 %. 32 des lignes de soudage ont été mises en service, 50 devraient être installées et le taux d'automatisation de l'ensemble de la gamme de produits a atteint 85 %.





étiquette à chaud: Transporteur de poutres de pont préfabriquées hydrauliques de 180 tonnes, Chine Fabricants, fournisseurs, usine de transporteurs de poutres de pont préfabriquées hydrauliques de 180 tonnes
Une paire de
Grue à double poutre pour la fusion de l'acierVous pourriez aussi aimer
Envoyez demande























