Grue à portique fixe
Description des produits
Une grue à portique fixe est un élément essentiel de l'équipement de manutention conçu pour soulever, déplacer et positionner efficacement des charges lourdes dans diverses applications industrielles. Il combine une ingénierie robuste avec des fonctionnalités personnalisables pour répondre à divers besoins opérationnels.
Les portiques fixes sont différents des portiques mobiles en ce sens qu'ils sont fixés à un emplacement spécifique, offrant ainsi une stabilité et une sécurité accrues. Dans le même temps, ils peuvent gérer des charges allant de quelques tonnes à des centaines de tonnes, selon le modèle et la configuration. Les portiques fixes sont fabriqués à partir d'acier ou de matériaux en alliage de haute qualité pour résister à une utilisation industrielle rigoureuse et à des conditions environnementales difficiles.
Les portiques fixes peuvent être personnalisés en termes d'envergure et de hauteur pour répondre à des exigences opérationnelles spécifiques. Des configurations à simple ou double faisceau sont également disponibles pour plus de flexibilité.
La fiabilité et la précision des portiques fixes sont essentielles pour les opérations de levage de charges lourdes. Ils fournissent également des solutions à long terme pour les installations nécessitant une manutention de matériaux fixes. Plus important encore, ils peuvent être personnalisés selon les normes industrielles et les objectifs opérationnels spécifiques.
Les portiques fixes sont un outil indispensable qui augmente la productivité, réduit le travail manuel et garantit une manipulation sûre des matériaux lourds dans les environnements industriels.
Composants de base : PLC, moteur, engrenage, moteur, chariot
Lieu d'origine : Henan, Chine
Garantie : 1,5 ans
Poids (KG):125 000 kg
Inspection vidéo à la sortie : Fournie
Rapport de test de machines : fourni
Application : extérieur/usine.
Classe ouvrière : A5
Poids de levage : 20-450 tonnes
Voie en acier : 43 kg/m QU70
Tension :3-Phase AC50HZ 380 V
Mécanisme de levage : Chariot
Type de grue : grue à portique robuste
Vitesse de levage : 0,48 ~ 4,8 m/min
Vitesse de déplacement : 3 ~ 30 m/min
Matériau en acier: Q355B
Images et composants
1. Faisceau principal
La poutre principale d'un portique fixe est l'un des principaux composants structurels qui s'étend horizontalement à travers la grue. Il joue un rôle essentiel en supportant la charge et en facilitant le mouvement du palan ou du chariot. La poutre principale supporte le poids de la charge levée, la distribuant aux colonnes ou aux pieds de support. Elle fournit une voie ou un rail pour que le chariot ou le palan puisse voyager horizontalement.
La poutre principale d'un portique fixe (souvent appelée « poutre » ou « poutre de pont ») est un élément structurel essentiel qui soutient le mécanisme de levage de la grue et facilite le mouvement horizontal de la charge le long de sa portée. Le palan, qui transporte la charge , est monté sur la poutre principale. La poutre fournit la structure permettant au palan de se déplacer horizontalement.
La poutre est conçue pour minimiser la déflexion sous charge afin de garantir la sécurité et l'efficacité. La longueur de la poutre principale dépend de l'application de la grue et de la zone qu'elle doit couvrir.
Généralement fabriqué en acier de construction pour garantir une résistance et une durabilité élevées. La longueur et la taille de la poutre principale dépendent de l'application, de la capacité de charge et des exigences de l'espace de travail de la grue. Elle doit résister aux charges statiques (du poids du chariot, du palan et de la charge) et charges dynamiques (dues au mouvement de la grue et de la charge). La poutre permet au chariot (et au palan) de se déplacer latéralement sur toute la portée pour positionner la charge avec précision. Souvent recouverte de peinture anti-corrosion ou d'autres traitements, en particulier pour les applications extérieures ou difficiles. environnements.
Système de levage
Moteur : Le moteur d'un système de levage dans une grue à portique fixe est un composant essentiel conçu pour fournir la puissance mécanique nécessaire pour lever et abaisser les charges.
2) Réducteur : Le réducteur d'un système de levage dans un portique fixe joue un rôle essentiel dans le transfert de puissance du moteur au mécanisme de levage, garantissant ainsi des opérations de levage efficaces. Il s'agit d'un composant essentiel du système de transmission mécanique, généralement conçu pour réduire la vitesse du moteur tout en augmentant son couple.
3) Tambour : Le tambour d'un système de levage dans une grue à portique fixe joue un rôle essentiel dans le mécanisme de levage. Il est responsable de l'enroulement et du déroulement du câble métallique ou du câble de levage, permettant à la grue de soulever ou d'abaisser efficacement les charges.
4) Câble métallique : Le câble métallique du système de levage d'un portique fixe est un composant essentiel responsable de la transmission de la force mécanique nécessaire pour soulever, abaisser ou maintenir de lourdes charges. Sa conception et sa maintenance ont un impact significatif sur la sécurité, la fiabilité et les performances de la grue.
5) Poulie : le câble métallique ou la chaîne est enroulé autour d'une série de poulies dans les blocs fixes et mobiles. Lorsque le palan tire le câble, le bloc mobile est rapproché du bloc fixe, soulevant ainsi la charge.
6) Dispositif de levage : Le dispositif de levage d'un portique fixe est le mécanisme de base responsable de la montée et de la descente des charges. Il s’agit d’un composant essentiel conçu pour manipuler des charges lourdes de manière sûre et efficace.
![]() |
![]() |
3.Fintransport
Le chariot d'extrémité d'un portique fixe est un élément crucial qui facilite le mouvement horizontal de la grue le long de sa voie ou de son rail. Il sert de pièce structurelle aux extrémités de la grue, supportant le chariot ou le palan qui se déplace le long de la poutre de la grue.
Le chariot d'extrémité est équipé de roues qui courent le long des rails ou des voies installées au sol ou sur la structure de support. Il permet à l'ensemble de la grue de se déplacer d'avant en arrière dans la zone désignée, permettant ainsi un mouvement latéral de la charge.
Le chariot d'extrémité soutient le pont (poutre principale de la grue) et assure la stabilité lorsque la grue est en mouvement. Il transfère les charges de la structure de la grue au sol ou à la surface d'appui.
Le chariot d'extrémité est généralement alimenté par un moteur électrique qui entraîne les roues. Le moteur peut être connecté à un mécanisme d'engrenage qui permet à la grue de se déplacer à différentes vitesses. Le système d'entraînement peut être indépendant pour chaque sommier, permettant un contrôle précis du mouvement.
Les sommiers sont souvent équipés de freins ou de fins de course pour garantir un fonctionnement sûr et éviter les accidents, tels que le déplacement de la grue au-delà de sa plage prévue. Des dispositifs anti-collision peuvent être utilisés pour éviter les dommages si la grue atteint sa position finale.
Les chariots d'extrémité sont généralement fabriqués en acier ou en métal renforcé pour supporter des charges lourdes. Ils peuvent être conçus avec des roulements ou d'autres composants pour réduire la friction et l'usure au fil du temps. La conception et la fonctionnalité du chariot d'extrémité sont essentielles pour garantir un fonctionnement fluide, sûr et fonctionnement efficace du système de portique.
![]() |
![]() |
4. Mécanisme de déplacement de la grue
1) Principe de fonctionnement
Lorsque l'opérateur envoie un signal, le moteur électrique est activé, fournissant un mouvement de rotation à l'arbre d'entraînement. L'arbre d'entraînement rotatif fait tourner l'engrenage qui lui est connecté, ce qui à son tour fait tourner les roues de déplacement. Lorsque les roues tournent, elles déplacent le portique. le long de la voie ferrée dans la direction souhaitée. La vitesse de déplacement est contrôlée en faisant varier la vitesse du moteur. Le sens de déplacement est contrôlé en inversant la polarité du moteur ou à l'aide d'un interrupteur avant/arrière. Les roues de déplacement sont positionnées de manière à répartir uniformément le poids de la grue sur la chenille, assurant ainsi la stabilité lors du déplacement.
2) Fonctions du mécanisme de commande de la grue
Mouvement horizontal : Le mécanisme de déplacement permet à la grue de se déplacer horizontalement sur toute la longueur du portique. Cela permet à la grue de se positionner sur la zone souhaitée pour les opérations de levage et d'abaissement.
Répartition de la charge : le mécanisme de déplacement permet de répartir le poids de la grue et toute charge qu'elle transporte uniformément sur la structure. Il assure la stabilité de la grue pendant le mouvement, évitant ainsi le basculement ou le déséquilibre.
Freinage et arrêt : Le mécanisme de déplacement comprend des systèmes de freinage pour arrêter la grue en cas de besoin. Cette fonction garantit un fonctionnement sûr, permettant à la grue de s'arrêter à un point spécifique, comme à la fin de sa trajectoire de déplacement ou à un emplacement de manutention de charge.
5. Mécanisme de déplacement du chariot
1) Composition structurelle
Châssis du chariot : Le châssis du chariot constitue le principal composant structurel qui abrite toutes les parties du chariot. Il est généralement fabriqué en acier pour supporter les contraintes et les charges. Le cadre supporte l'unité de levage et est conçu pour être suffisamment solide mais suffisamment léger pour se déplacer efficacement.
Roues : Le chariot est monté sur des roues qui roulent sur des rails positionnés sur la structure du portique. Ces roues sont généralement fabriquées en acier trempé pour résister à l'usure.
Dispositif d'entraînement : Le mécanisme d'entraînement se compose d'un moteur électrique ou d'un système hydraulique, selon la conception de la grue. Le moteur est connecté au système de réducteur, qui réduit la vitesse tout en augmentant le couple nécessaire pour déplacer le chariot.
2) Fonction du mécanisme de commande du chariot
Système d'entraînement : il s'agit généralement d'un moteur électrique connecté à une boîte de vitesses, qui alimente le mouvement du chariot le long d'un ensemble de rails ou de chenilles montés sur la structure de la grue. Le moteur peut être contrôlé pour déplacer le chariot dans les deux sens, offrant ainsi flexibilité et contrôle dans le positionnement de la charge.
Positionnement de la charge : le chariot peut déplacer la charge sur toute la longueur de la poutre de la grue, permettant aux opérateurs de placer les charges à des endroits précis, souvent sur de longues distances. Ceci est particulièrement utile pour les tâches telles que le chargement et le déchargement de matériaux de camions ou de conteneurs.
Mouvement horizontal : Le mécanisme de déplacement du chariot permet à la grue de déplacer le palan horizontalement le long de la poutre ou de la poutre de la grue. Cela permet à la grue de positionner la charge avec précision sur une zone spécifique.
Roue de grue
Une roue de grue est un composant essentiel d'une grue à portique fixe, qui est un type de grue utilisé pour soulever et transporter de lourdes charges. La roue de la grue est spécialement conçue pour permettre au portique de se déplacer le long d'une voie ou d'un système ferroviaire, soit dans une zone fixe, soit le long d'un itinéraire spécifique.
1) Fonction des roues
Les roues sont conçues pour rouler sur des rails ou des pistes spécifiques, qui peuvent être fixées au sol ou faire partie d'un système mobile plus grand. La conception de la chenille doit correspondre à la taille et à l'alignement des roues pour des performances optimales. Les roues de la grue aident à répartir uniformément le poids du portique et les charges qu'il transporte, assurant ainsi la stabilité pendant le levage et le déplacement.
2) Exigences de conception
Ces roues sont conçues avec une surface de roulement solide pour assurer la traction et un mouvement fluide le long du système de rails de la grue. La conception comprend souvent des rainures pour aider à maintenir l'alignement de la grue sur la voie. La roue de la grue est généralement fabriquée à partir d'un acier ou d'un alliage à haute résistance pour résister aux lourdes charges et aux contraintes continues pendant le fonctionnement. Les roues de la grue sont disponibles en différentes tailles en fonction de la capacité de charge de la grue et l'application spécifique. Des roues plus grandes sont utilisées pour les grues de plus grande capacité et pour les distances de déplacement plus longues.

7. Crochet de grue
Le crochet de grue d'un portique fixe joue un rôle crucial dans le levage et le déplacement de charges. Le crochet est généralement fabriqué en acier à haute résistance pour résister aux forces portantes lors des opérations de levage. Il est conçu avec une forme incurvée pour maintenir solidement le charge par une chaîne, une corde ou une élingue. Elle peut avoir un loquet ou un mécanisme de sécurité pour empêcher la charge de glisser pendant le levage.
Un portique fixe possède une structure fixe ou rigide qui supporte les mécanismes de levage de la grue. Le crochet de grue est monté à l'extrémité d'un chariot qui se déplace le long du rail horizontal de la grue. La position du crochet de grue est contrôlée par un mécanisme de levage, lui permettant de soulever et d'abaisser des charges à des endroits spécifiques.
Le crochet de grue est conçu pour soulever des matériaux lourds tels que des poutres de construction, des conteneurs ou d'autres objets volumineux. Il fonctionne conjointement avec le palan de la grue, qui élève et abaisse le crochet, lui permettant de manipuler et de positionner avec précision des charges lourdes.
Un loquet ou une goupille de sécurité peut être intégré au crochet de la grue pour empêcher la charge de se désengager pendant le mouvement. Des dispositifs anti-rotation peuvent également être présents pour garantir que le crochet ne tourne pas ou ne pivote pas de manière incontrôlable.

Moteur
Le moteur d'un portique fixe joue un rôle crucial dans l'entraînement des mouvements de la grue. Les portiques fixes sont de grandes machines robustes généralement utilisées pour soulever et transporter des matériaux sur des zones fixes et définies. Ces grues se composent d'un palan, d'un chariot, d'un portique et d'un système d'entraînement motorisé.
Les moteurs d'une grue à portique fixe sont généralement des moteurs électriques. Les types courants incluent des moteurs à induction AC pour plus de simplicité, d'efficacité et de fiabilité, ou des moteurs DC pour un contrôle de vitesse plus précis. En règle générale, le moteur est situé sur le chariot de la grue, ou parfois sur le portique, en fonction de la conception de la grue.
Le moteur entraîne le palan, qui est responsable du levage et de l'abaissement de la charge. Le moteur entraîne le chariot (pour le mouvement horizontal) le long du système ferroviaire. Certains portiques, en particulier ceux dotés d'une capacité de rotation, utilisent des moteurs pour faire tourner la structure de la grue (si applicable) pour un positionnement précis de la charge. La puissance du moteur est déterminée par la capacité de poids de la grue. Les portiques plus grands, conçus pour des charges plus lourdes, utiliseront des moteurs plus puissants. La vitesse du moteur peut être contrôlée à l'aide d'entraînements à fréquence variable (VFD), permettant un contrôle précis des mouvements.
Le moteur d’un portique fixe est l’élément clé qui entraîne le levage, le mouvement et le positionnement de charges lourdes. Le type et la puissance du moteur dépendent de la conception de la grue et des exigences opérationnelles, et un bon entretien du moteur est essentiel pour un fonctionnement sûr et efficace de la grue.

.
Système d'alarme sonore et lumineuse et interrupteur de fin de course
1) Système d'alarme sonore et lumineuse
Un système d’alarme sonore et lumineuse pour un portique fixe est un élément de sécurité essentiel qui garantit le bien-être des travailleurs, des équipements à proximité et de l’environnement. De tels systèmes sont conçus pour alerter le personnel des dangers potentiels, de l'état de fonctionnement ou d'un dysfonctionnement de la grue.
Alarmes sonores (signaux sonores) : Buzzers/avertisseurs sonores : des émetteurs sonores à décibels élevés alertent les personnes sur des conditions spécifiques (par exemple, mouvement de grue, ascenseur en cours, arrêt d'urgence). Tonalités d'alarme : différents sons peuvent correspondre à différentes situations (par exemple, continu sirène pour une urgence, bip intermittent pour un fonctionnement général).Contrôle du volume : garantit que l'alarme est audible sur tout le chantier, même dans des environnements bruyants.
Signaux lumineux (indicateurs visuels) : Feux clignotants : Des feux clignotants à haute intensité (généralement rouges, jaunes ou verts) sont utilisés pour signaler visuellement l'état de fonctionnement de la grue. Par exemple:
Lumière clignotante rouge : indique des conditions d'urgence ou dangereuses.
Feu clignotant jaune : signale que la grue est en fonctionnement ou en mouvement.
Feu vert : peut indiquer que la grue est inactive ou qu'elle peut s'approcher en toute sécurité.
2) Fin de course
Un interrupteur de fin de course sur un portique fixe est un dispositif de sécurité utilisé pour empêcher le mouvement de la grue de dépasser une limite prédéterminée. Cela permet de garantir que les composants de la grue (comme le palan, le chariot ou le portique) ne se déplacent pas trop loin dans aucune direction, évitant ainsi les dommages mécaniques, les accidents ou les opérations dangereuses.
Fonctions de l'interrupteur de fin de course : Limitation de position : l'interrupteur de fin de course détecte lorsque le chariot, le palan ou le portique de la grue a atteint la fin de sa plage de déplacement et coupe l'alimentation pour empêcher tout mouvement ultérieur. Sécurité : il agit comme un mécanisme de sécurité pour empêcher la grue de fonctionner en dehors des limites de sécurité. Empêche la surcourse : garantit que le mécanisme de levage de la grue ne dépasse pas les limites de sécurité, évitant ainsi d'endommager la grue ou la charge. Protection de la charge : empêche la grue de soulever ou d'abaisser un charger trop loin, garantissant l’intégrité de la charge et prévenant les accidents.
Fins de course mécaniques : ils sont physiquement actionnés par le mouvement des pièces de la grue. Il peut s'agir d'interrupteurs à rouleaux, à levier ou à piston. Interrupteurs de fin de course électriques : ceux-ci utilisent des capteurs ou des circuits électriques pour détecter la position des composants de la grue.

10.Dispositifs de sécurité
1) Dispositif de protection contre les surcharges : empêche la grue de soulever des charges dépassant sa capacité nominale, réduisant ainsi le risque de défaillance structurelle ou de basculement.
2) Fins de course (limites de déplacement et de levage) : garantissent que le chariot, le palan ou le portique de la grue ne se déplace pas au-delà d'une certaine position prédéfinie, évitant ainsi d'endommager la structure de la grue ou l'équipement environnant.
3) Bouton d'arrêt d'urgence : fournit un moyen immédiat d'arrêter la grue en cas d'urgence.
4) Contrôle anti-balancement : minimise le balancement ou le balancement de la charge, ce qui peut entraîner des accidents ou des dommages.
5) Indicateur de moment de charge (LMI) : fournit des données en temps réel sur la stabilité de la grue en mesurant le moment ou la force exercée par la charge.
6) Klaxon et voyants d'avertissement : alertez les travailleurs à proximité de la grue de son fonctionnement, en particulier lorsqu'elle déplace de lourdes charges ou dans des zones restreintes.
11.Mode de contrôle
1) Commande manuelle : La grue est actionnée manuellement par un opérateur utilisant un panneau de commande ou un joystick pour contrôler les mouvements de la grue. Il s'agit du mode le plus simple, dans lequel l'opérateur contrôle directement les mouvements du palan, du chariot et du portique.
2) Contrôle semi-automatique : La grue peut fonctionner en mode semi-automatique dans lequel certains mouvements (tels que le levage ou le mouvement du chariot) sont automatisés, mais l'opérateur a toujours un certain contrôle manuel sur d'autres fonctions.
3) Contrôle entièrement automatique : En mode entièrement automatisé, la grue est contrôlée par un système informatique embarqué, avec une intervention humaine minimale ou inexistante. Ces systèmes peuvent gérer des opérations complexes de levage, de chargement et de déchargement sur la base d'instructions préprogrammées ou de données de capteurs en temps réel.
4) Télécommande radio : ce mode permet de contrôler la grue à distance à l'aide d'un émetteur radio portatif. Il offre aux opérateurs la flexibilité de travailler à partir de différents points, améliorant ainsi la sécurité et la productivité dans les environnements où la grue fonctionne sur des zones vastes ou dangereuses.
5) Contrôle par joystick : Ceci est souvent utilisé dans les modes manuels ou semi-automatiques, où l'opérateur utilise un joystick pour contrôler les mouvements de la grue. Il permet un contrôle précis de la charge de levage, notamment pour les tâches nécessitant des mouvements fins ou dans des espaces restreints.

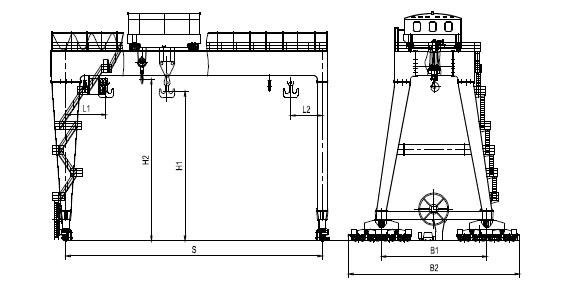
12.Croquis

Technique principale

Avantages
1) Capacité portante élevée
Les portiques fixes sont conçus pour soulever efficacement des charges lourdes, souvent supérieures à 100 tonnes, ce qui les rend idéaux pour les applications industrielles où des matériaux volumineux et lourds doivent être déplacés.
2) Forte stabilité
Comme la grue est ancrée à une position fixe sur des rails ou d'autres éléments structurels, elle offre un haut niveau de stabilité et de soutien lors des opérations de levage. Cela réduit le risque de basculement ou de balancement sous de lourdes charges.
3) Précision dans le mouvement
Les portiques fixes offrent un contrôle fluide et précis du positionnement de la charge, ce qui les rend idéaux pour les opérations nécessitant un placement précis de matériaux lourds dans des espaces restreints.
4) Durabilité et fiabilité
Grâce à leur conception robuste et à leurs matériaux de haute qualité, les portiques fixes sont conçus pour résister aux environnements difficiles et fonctionner en continu, réduisant ainsi les temps d'arrêt et augmentant la productivité.
5) Capacité à s’étendre sur de grandes zones
Les portiques fixes peuvent être conçus pour couvrir de grandes distances, leur permettant de déplacer des matériaux sur de grandes surfaces, telles que des quais, des aires de stockage ou de grands chantiers de construction.
6) Besoin réduit de travail manuel
Ces grues réduisent considérablement le besoin de levage et de transport manuels de matériaux, ce qui peut contribuer à améliorer la sécurité et l'efficacité du lieu de travail en minimisant le risque de blessures des travailleurs.
Application:
Manutention des marchandises : les portiques fixes sont essentiels dans les ports pour charger et décharger les conteneurs des navires. Ils peuvent manipuler des conteneurs lourds et volumineux avec précision et rapidité.
Construction et réparation de navires : dans les chantiers navals, ces grues sont utilisées pour déplacer de grandes pièces en acier, des sections de navires ou des navires entiers pendant les processus de construction ou de réparation.
Levage de matériaux lourds : les portiques fixes sont utilisés pour transporter des matériaux de construction lourds tels que des poutres en acier, des blocs de béton et des engins de construction sur un chantier de construction.
Construction de ponts : ils sont utilisés dans la construction de ponts et d'autres grandes structures où les matériaux doivent être soulevés à de grandes hauteurs ou distances.
Prise en charge de la chaîne d'assemblage : dans le secteur manufacturier, en particulier dans les secteurs de l'automobile et de la machinerie lourde, les portiques fixes déplacent de grandes pièces à travers différentes étapes d'assemblage.
Manutention des matériaux : ces grues facilitent le mouvement des matières premières, telles que les grandes tôles ou les composants de machines, à travers les usines.
Manipulation de l'acier chaud : les portiques fixes sont couramment utilisés dans les aciéries pour déplacer l'acier en fusion, les tôles d'acier lourdes ou d'autres produits métalliques lourds d'une partie de l'usine à une autre.
Transport de matériaux : ces grues sont essentielles au transport de bobines d'acier, de lingots et d'autres charges lourdes au sein d'une installation de production d'acier.
Stockage et récupération : les portiques fixes sont utilisés pour déplacer des objets lourds ou encombrants dans et hors des étagères ou des bacs de stockage, améliorant ainsi l'efficacité des systèmes de stockage et de récupération.
Opérations de cross-docking : Dans les grands centres de distribution, ces grues peuvent faciliter le transfert rapide des marchandises d'un véhicule de transport à un autre.
Assemblage d'avions : ces grues sont utilisées pour l'assemblage et le transport de grandes pièces d'avions pendant la production, y compris les sections de fuselage et les assemblages d'ailes.
Manutention des composants : le secteur aérospatial s'appuie sur des portiques pour déplacer les composants sensibles et lourds à travers les différentes étapes de fabrication.
Manutention d'équipements lourds : Les portiques fixes sont essentiels dans les centrales électriques pour soulever des machines lourdes, des composants de turbine ou de grandes pièces électriques.
Maintenance : Ces grues aident à la réparation et à la maintenance de gros équipements industriels dans les centrales électriques, y compris les installations au charbon et nucléaires.
Manutention de matériaux lourds : Les portiques fixes sont utilisés dans les opérations minières pour transporter des matériaux tels que du minerai, des roches et des minéraux d'une partie de la mine ou de l'usine de traitement à une autre.
Entretien des équipements : Ils sont également utilisés pour soulever et entretenir des machines minières lourdes.
Grueproduction procédure
Exigences de spécification : Comprendre les exigences spécifiques de la grue, telles que la capacité de charge, la portée, la hauteur de levage et les facteurs environnementaux (intérieur/extérieur, température, etc.). Conception structurelle : Concevoir la structure de la grue, y compris le cadre du portique, le mécanisme de levage et les fondations, à l'aide d'un logiciel de CAO pour garantir la solidité, la stabilité et la sécurité.Conception mécanique : Concevez le chariot, le palan et d'autres systèmes mécaniques requis pour le fonctionnement de la grue.Conception électrique : Concevez les composants électriques, y compris les panneaux de commande, les moteurs et la sécurité. systèmes.
Plaques et sections en acier : de l'acier de haute qualité est commandé pour les composants structurels de la grue (colonnes, poutres, etc.). Moteurs et composants : les moteurs pour le chariot, le palan et d'autres systèmes de contrôle sont achetés auprès de fournisseurs. Électrodes de soudage, boulons, et fixations : consommables nécessaires au soudage et à l'assemblage. Systèmes de contrôle : des composants électriques tels que des interrupteurs, des relais et des capteurs sont acquis pour les systèmes de contrôle de la grue.
Découpe et façonnage : Les plaques et profilés d'acier sont découpés aux dimensions requises à l'aide de machines de découpe, de découpeurs plasma ou de jets d'eau. Soudage : Les composants en acier sont soudés ensemble pour former la structure du portique. Cela se fait en plusieurs parties : le châssis, les pieds, les traverses et autres éléments. Usinage : Si nécessaire, des opérations d'usinage (perçage, fraisage) sont effectuées sur les pièces pour garantir un ajustement précis. Traitement de surface : Les composants sont nettoyés et traités (tels que comme le grenaillage et la peinture) pour prévenir la rouille et améliorer la durabilité, surtout si la grue est utilisée dans des environnements extérieurs.
Assemblage du cadre du portique : La base, les pieds et les poutres transversales sont assemblés pour former une structure de portique complète. Cette étape peut avoir lieu dans un grand atelier ou sur site, selon la taille et l'emplacement de la grue. Montage des rails : Les rails du chariot de la grue sont montés sur les poutres du portique. Ceci est crucial pour garantir un fonctionnement fluide. Installation du palan et du chariot : L'ensemble palan, moteur et chariot est monté sur les rails. Le mécanisme de levage est intégré à la chaîne ou au câble de levage et le moteur est connecté au système d'entraînement. Installation électrique : le câblage, les panneaux de commande, les interrupteurs et les systèmes de sécurité sont installés, garantissant que la grue peut être utilisée à distance et en toute sécurité.
Tests mécaniques : vérifiez que tous les systèmes mécaniques fonctionnent correctement, y compris le mouvement du palan, du chariot et du portique. Tests électriques : vérifiez le fonctionnement des composants électriques, y compris le système de commande, les moteurs et les fonctions d'arrêt d'urgence. Tests de charge : effectuez des tests de charge pour assurez-vous que la grue peut soulever la capacité spécifiée sans problème. Cela peut impliquer de charger la grue avec des poids de test et de la faire exécuter divers mouvements. Vérification des caractéristiques de sécurité : Assurez-vous que tous les systèmes de sécurité, y compris les interrupteurs de fin de course, les capteurs de surcharge et le freinage d'urgence, fonctionnent correctement.
Assemblage sur site (si nécessaire) : Pour les grandes grues, les pièces peuvent être transportées jusqu'au site d'installation, où l'assemblage final et la configuration sont effectués. Ajustements finaux : Tout ajustement de l'alignement, du câblage ou des systèmes de sécurité de la grue est effectué si nécessaire. Formation des opérateurs : si nécessaire, les opérateurs sont formés sur la façon d'utiliser la grue de manière sûre et efficace, couvrant les procédures d'exploitation, de maintenance et de sécurité.

Vue de l'atelier :
L'entreprise a installé une plateforme intelligente de gestion des équipements, et a installé 310 ensembles (ensembles) de robots de manutention et de soudage. Une fois le plan terminé, il y aura plus de 500 ensembles (ensembles) et le taux de mise en réseau des équipements atteindra 95 %. 32 lignes de soudage ont été mises en service, 50 devraient être installées et le taux d'automatisation de l'ensemble de la ligne de produits a atteint 85 %.





étiquette à chaud: grue à portique fixe, fabricants de grues à portique fixe en Chine, fournisseurs, usine
Une paire de
Grue à portique de fret portuaireUn article
La plus grande grue à portique du mondeVous pourriez aussi aimer
Envoyez demande



























